Rodinné a bytové domy

Výběr z několika zrealizovaných staveb této kategorie.
Rodinný dům - Habartov

Jednopodlažní rodinný dům typu bungalov se prostornou zastřešenou terasou.

Rodinný dům - Kolová

Dvojpodlažní rodinný dům s klasickým krovem, kde hlavní dominantou je přesah střešní konstrukce s robustními krokvemi tvořící posezení.

Apartmánový dům - Bublava

Třípodlažní apartmánový dům s restauračním zařízením naacházející se v zimním letovisku západních Čech.

Zámeček - Hubertus u Karlových varů

Vizualizace oprav fasádních prvků.

Rodinný dům - Královské Poříčí

Jednopodlažní rodinný dům atypického půdorysu s valbovou střechou. Jedná se o konstrukční systém dřevostavby.

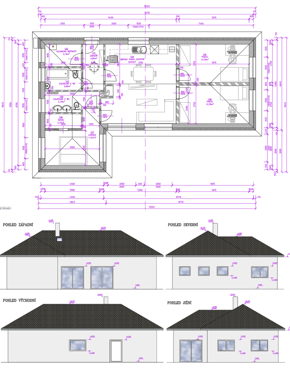
Rodinný dům - Oloví

Jednopodlažní rodinný dům půdorysu tvaru ,,L" s valbovou střechou.

Rodinný dům - Plesná

Jednopodlažní rodinný dům typu bungalov se skromným množstvím užitné plochy a dostatečným počtem obytných prostor.

 Kontakty

Telefon

Ing. Milan Snopek:   +420 723 769 862
MgA. Jan Nájemník: +420 725 528 214

Email

MilanSnopek@seznam.cz
jan.najemnik@gmail.com

O nás

Projekční kancelář založena v roce
2014 v Sokolově. 

Firemní údaje
  • IČ: 031 22 905
  • IDDS: xbmjugq
  • Bankovní spojení: Komerční banka, a.s.
  • Č.ú.:107-7795440297/0100
Kontakt
  • Nádražní 189
  • 356 01 Sokolov
  • Telefon: +420 723 769 862
  • Email: MilanSnopek@seznam.cz

Site was created with Mobirise